Термінова продаж 3х Тополь1 з меблями та технікою (держ програми) (№ 213-279-784)
Ціна: 37 500 $

Адреса: Тополь, 7, Дніпро, Дніпропетровська, Шевченківський, Тополь 1,2,3
Характеристики
| Ціна: | 37 500 $ |
|---|---|
| № об'єкта: | 213-279-784 |
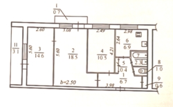
| Кімнат: | 3 см/рз |
| Поверх: | 5 / 9 ліфт |
| Площа: | 65 / 47 / 7 м2 |
| Санвузол: | 1 роздільний |
| Балкон: | балкон+лоджія |
Опис
У продажу 3-на квартира на ЖМ Тополь-1. Комфотний 5й поверх з 9-ти, доглянутий будинок, новий ліфт. Квартира зі стандартною планіровкою 2+1, роздільним санвузлом, є і балкон і лоджа, вбудовані шафи для зберігання у передпокою. Вікна МПО у квартирі, лоджа засклана, а балкон залишили відкритим - не заскланим. Квартира дуже тепла, централізоване опалення працює добре (котельня поряд). Квартира у житловому стані, при продажу залишаються меблі та техніка: дівани, шафи, стінка у дітячій кімнаті, газова плита, нова керамична витяжка, холодильник, бойлер, пральна машина, кондиціонер. Дже зручне розташування будинку від зупинки транспорту Космічна повз АТБ пройти всього 2 будику, під вікнами розташовані «ЦЕНТР ДИТЯЧОЇ ТА ЮНАЦЬКОЇ ТВОРЧОСТІ «КРИЛА» (Будинок Піонерів) та дітсадок, школа поряд за будинком. Чекаємо ваші пропозіції, дзвоніть.




















